L'étude de projet & suivi de chantier

/ VOUS SOUHAITEZ ÊTRE ACCOMPAGNÉ DANS LA CONCEPTION DE VOTRE LIEU DE VIE ?

Je conçois votre projet sur mesure, de manière à ce qu’à la fin de notre collaboration, vous ayez toutes les ressources nécessaires pour débuter vos travaux en toute confiance et autonomie.

/ VOUS SOUHAITEZ QUE VOTRE PROJET SOIT GÉRÉ DE A À Z ?

Je vous accompagne dans l’étude complète de votre projet, puis dans les différentes étapes de sa réalisation. De la proposition d’entreprises, à la livraison du chantier. Une gestion complète pour un projet serein et « clé en main ».

Comment se déroule une étude ?

_

ÉTAPE 1 : RENCONTRE & ANALYSE

  • Prise de contact & échanges sur vos besoins, votre budget et les contraintes de votre projet
  • État des lieux (relevés, photos, prises de cotes du plan existant)

_

ÉTAPE 2 : ÉTUDE DU POTENTIEL

  • Avant-Projet Sommaire (APS) : Proposition de 2 à 3 plans d’aménagement en 2D
  • Perspectives 3D pour une première immersion dans le projet 

=> Vous pouvez choisir de vous arrêter à cette étape.

_

ÉTAPE 3 : CONCEPTION DÉTAILLÉE

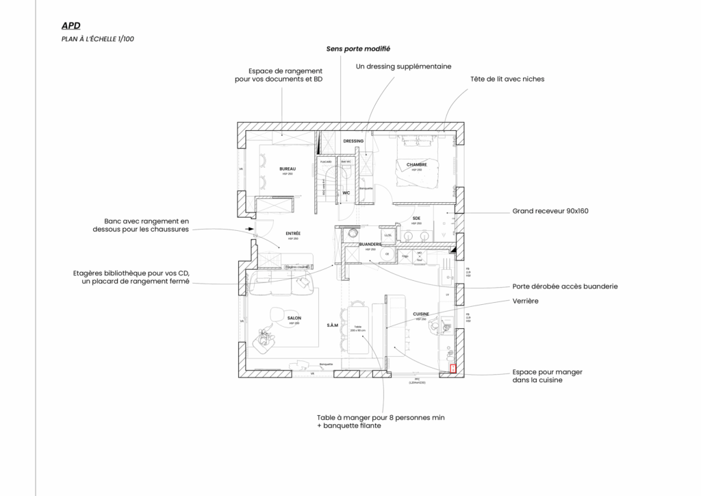
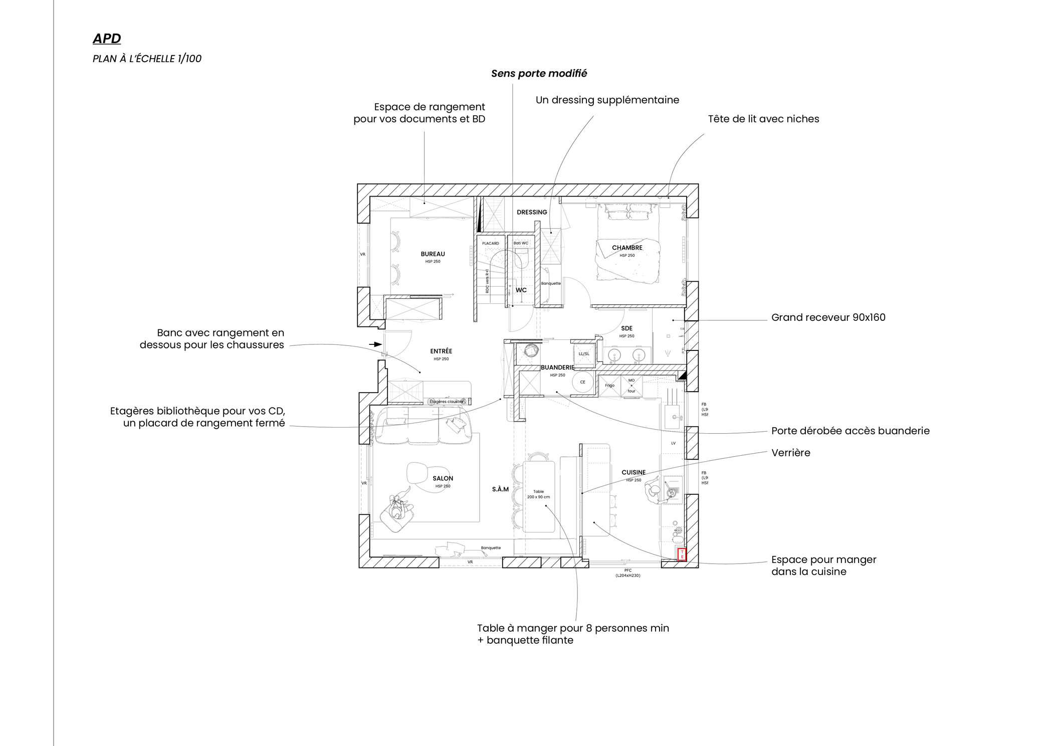
  • Avant-Projet Détaillé (APD) : Plan d’aménagement 2D retenu coté
  • Visuels 3D photoréalistes avec le mobilier, les couleurs et matériaux
  • Réalisation des plans techniques (élévations cuisine/salle de bain et plans électriques)
  • Réalisation de mobilier sur-mesure (plans, élévations techniques, 3D et finitions du meuble)
  • Proposition de matériaux & de choix de couleurs pour les espaces souhaités
  • Listes shopping : mobiliers, éclairages

Et après ?

Selon vos besoins, un suivi de chantier est possible. Je vous accompagne de la conception, jusqu’à la réalisation.

  • Dossier de Consultation des Entreprises
  • Appel d’offre
  • Coordination des équipes
  • Réunions de chantier + compte-rendu
  • Réception de chantier

Prestation réalisée sur place ou à distance, seulement pour la phase de conception.

Chaque projet étant unique, n’hésitez pas à me faire part de vos attentes pour obtenir un devis personnalisé.  

Extrait de la prestation

Plan architecture intérieure
Retour en haut